Next Generation Housing Phase I

Artistic rendering of Next Gen Phase I
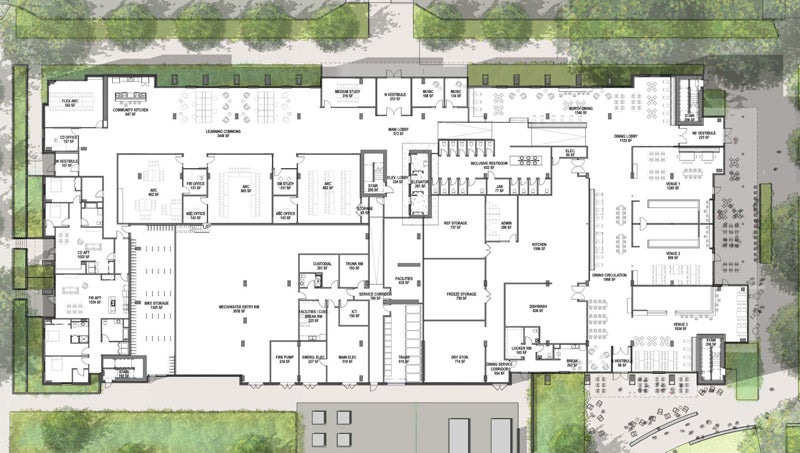
Blueprint-style image of Next Gen Phase I
Next Generation Housing Phase I

Construction is under way on Phase I of the Next Generation Housing Project at the UO: a seven-story, 219,700-square-foot residence hall on East 17th Avenue between Moss and Columbia Streets. This residence hall will have beds for 870 returning and first-year students in single-, double-, and triple-occupancy rooms. Each room will have an attached bathroom. Phase I will open for its first class of residents in fall 2027.

For more information, visit the UO’s Government and Community Relations web page about Next Generation Housing. 

Next Gen Phase I outdoor dining venue patio
Amenities

Community kitchen
Indoor bike storage
Music practice rooms
Laundry on floor
Private and group study rooms
Community lounges
Landscaped lawns and courtyards
Academic residential community pods
Outdoor dining venue patios


Double room
Room Types


Single with bath: 177 ft2
Double/triple with bath: 213 ft2
Large triple with bath: 277 ft2

Beds: twin extra long 36" × 80"

Bed and room configuration may vary

Next Gen Phase I Location

Physical Address
1752 East 17th Avenue
Eugene, Oregon

Mailing Address
Student’s full name
Mailbox number (received during move-in)
1710 East 15th Ave.
Eugene, OR 97403-2271

Note: Students using this address will receive mail and packages using an app from Smiota, our package locker partner. Download the app and use your uoregon email address to sign up.

Service Center

Located in Global Scholars Hall. Go here for mail and packages and a key if you’re locked out.

Phone: 541-346-9114

Hours of operation

Package Center

Located on the first floor of Global Scholars Hall. Pick up and send packages from this central location.

Phone: 541-346-9114

Hours of operation